Edificio East

Consultar
  • Tipo de Propiedad: Edificio
  • Tipo de Oferta: Venta
  • Ubicación: Prov. de Bs As
  • Barrio: Olivos
  • Calle: Avenida del Libertador 2476

Amenities

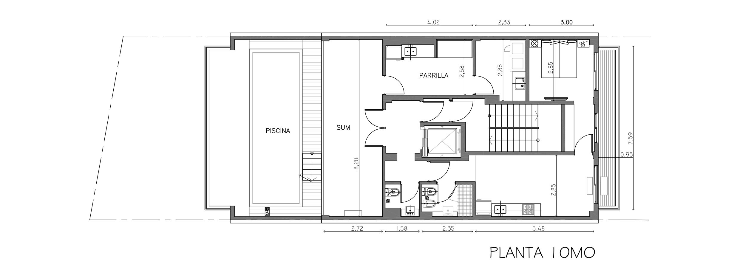
  • Piscina pequeña. Sum con calefacción por radiadores y aire acondicionado. Parrilla

Detalles

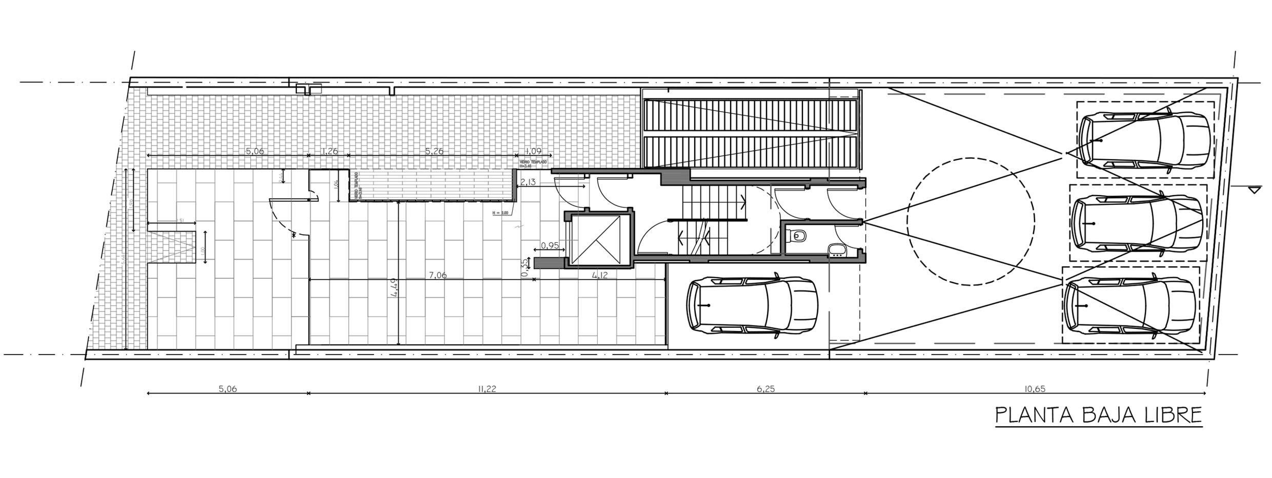
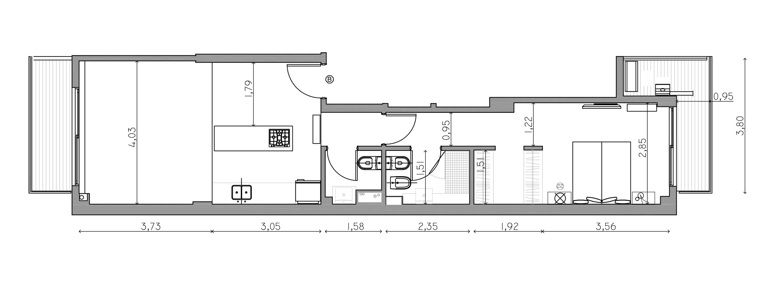
15 Departaments distribuidos en 9 pisos,  de los cuales 12 son semipisos y 3 son pisos de 3 ambientes. Todos con balcones al frente y al crontrafrente. Piscina en piso 10. Parrilla y Sum. 11 Cocheras distribuidas en 2 subsuelos.

Características:

  • Pisos en estar, cocina y dormitorios,  porcelanato símil madera marca Ilva.
  • Porcelanato en baños en combinación blanco y venecita.
  • Carpintería de aluminio línea modena con termopaneles.
  • Griferías de baño y cocina marca Deca Piazza.
  • Mueble de cocina completo.
  • Sanitarios modelo deca Piazza.
  • Mesada de cocina en mármol carrara.
  • Agua caliente por calderas duales individuales.
  • Instalación de equipos de aire acondicionado frio/calor.
  • Calefacción por radiadores.
  • Vestidores.
  • Piscina pequeña.
  • Sum con calefacción por radiadores y aire acondicionado, con Parrilla.
  • 1 Ascensores marca Hoser de frecuencia variable.
  • Cocheras cubiertas en subsuelo y descubiertas en PB, con acceso por rampa móvil.
  • Horno y anafe eléctrico marca Longvie.

Video

Planos

East - 1ero a 6to

East - 8vo y 9no

East - 10mo

East - Planta Baja Libre

East - Semisubsuelo y subsuelo

East - Tipología deptos A

East - Tipología deptos B

  • ID: 3963
  • Views: 213
Message Us on WhatsApp